ANNUNCIO
Inviaci una email

Invio messaggio in corso...
Dati immobile
Descrizione immobile
TRIESTE – ROIANO – VIA UDINE
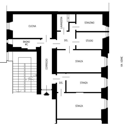
Ampio appartamento a reddito – 109 mq
A pochi passi dal campo Belvedere (in via Udine 40), in posizione comoda alla stazione ferroviaria e a tutti i principali servizi, proponiamo in vendita un appartamento di ampia metratura, ideale come investimento.
L’alloggio, ben organizzato negli spazi, si sviluppa su una superficie catastale di 109 mq ed è composto da cinque stanze (una matrimoniale, una doppia, una singola e due stanze/studio), cucina abitabile, bagno finestrato, un ulteriore vano adibito a lavanderia/ripostiglio e cantina.
L’immobile è attualmente locato a studenti universitari con contratto in essere fino a settembre 2026, garantendo un’entrata mensile di circa € 1.250 e una rendita immediata, senza necessità di lavori.
Caratteristiche principali:
- riscaldamento autonomo
- serramenti in PVC
- classe energetica E (EPgl,nren 84,17 kWh/m²anno)
- rendita catastale € 688,18
- spese condominiali contenute
Soluzione interessante per chi cerca un investimento stabile in una zona da sempre molto richiesta, grazie alla vicinanza alla stazione e al polo universitario.
I dati, le immagini, le planimetrie contenute nel presente annuncio pubblicitario hanno natura indicativa e non costituiscono né potranno costituire contenuto e/o elementi di riferimento ai fini di eventuali futuri contratti e/o per la determinazione del loro contenuto.
Contattaci

Invio messaggio in corso...