ANNUNCIO
Trieste - Trieste - Via Cesare Rossi 14/4
Inviaci una email

Invio messaggio in corso...
Dati immobile
Descrizione immobile
TRIESTE - GIARIZZOLE - Ampio appartamento con terrazzo, giardino e taverna
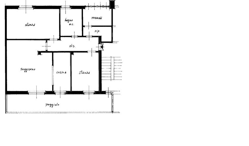
In contesto residenziale particolare e ben curato composto da sole 4 palazzine, ciascuna sviluppata su due livelli con appena 4 unità abitative per edificio, proponiamo in vendita una interessante proprietà.
L'immobile si distingue per gli spazi generosi e la versatilità degli ambienti:
- Superficie interna di circa 92 mq
- Splendido terrazzo di 22 mq, ideale per pranzi all’aperto e momenti di relax
- Giardino/cortile privato di circa 30 mq
- Cantina attualmente adibita a taverna, perfetta come spazio hobby o zona conviviale
- Posto auto coperto sotto portico
Distribuzione interna:
Ingresso su disimpegno, ampio soggiorno con accesso diretto al terrazzo e collegamento alla cucina abitabile, una grande camera matrimoniale, una camera doppia, bagno finestrato completo.
Presente inoltre una veranda con ripostiglio, facilmente adattabile a ulteriore stanza o studio.
L’appartamento si presenta in condizioni più che ottime, pronto da abitare, ed è dotato di:
- riscaldamento autonomo
- climatizzatore
Il contesto è particolarmente tranquillo, ideale per chi cerca privacy senza rinunciare alla comodità dei servizi cittadini.
Soluzione perfetta per famiglie o per chi desidera spazi esterni vivibili.
Classe energetica: in fase di predisposizione
Alcune immagini potrebbero essere modificate con l’ausilio dell’intelligenza artificiale
I dati, le immagini e le planimetrie contenute nel presente annuncio hanno natura indicativa e non costituiscono, né potranno costituire, elementi di riferimento ai fini di eventuali futuri contratti e/o per la determinazione del loro contenuto.
Contattaci

Invio messaggio in corso...